Sancerre
Parisian elegance and a dream location are yours at the Sancerre, a fully remodeled two-bedroom, two-bathroom apartment in one of the most coveted areas of the 7th arrondissement. The beauty of Paris is on display thanks to eight large French windows overlooking the tree-lined avenue de la Bourdonnais. For that perfect touch, several windows in this stunning apartment feature enchanting Eiffel Tower views. The décor is elegant in every detail and includes modern conveniences like central air conditioning that you’ve come to expect from Paris Perfect Shared. With the Champs de Mars garden almost across the street, you couldn’t ask for more!

FINELY APPOINTED PARISIAN APARTMENT
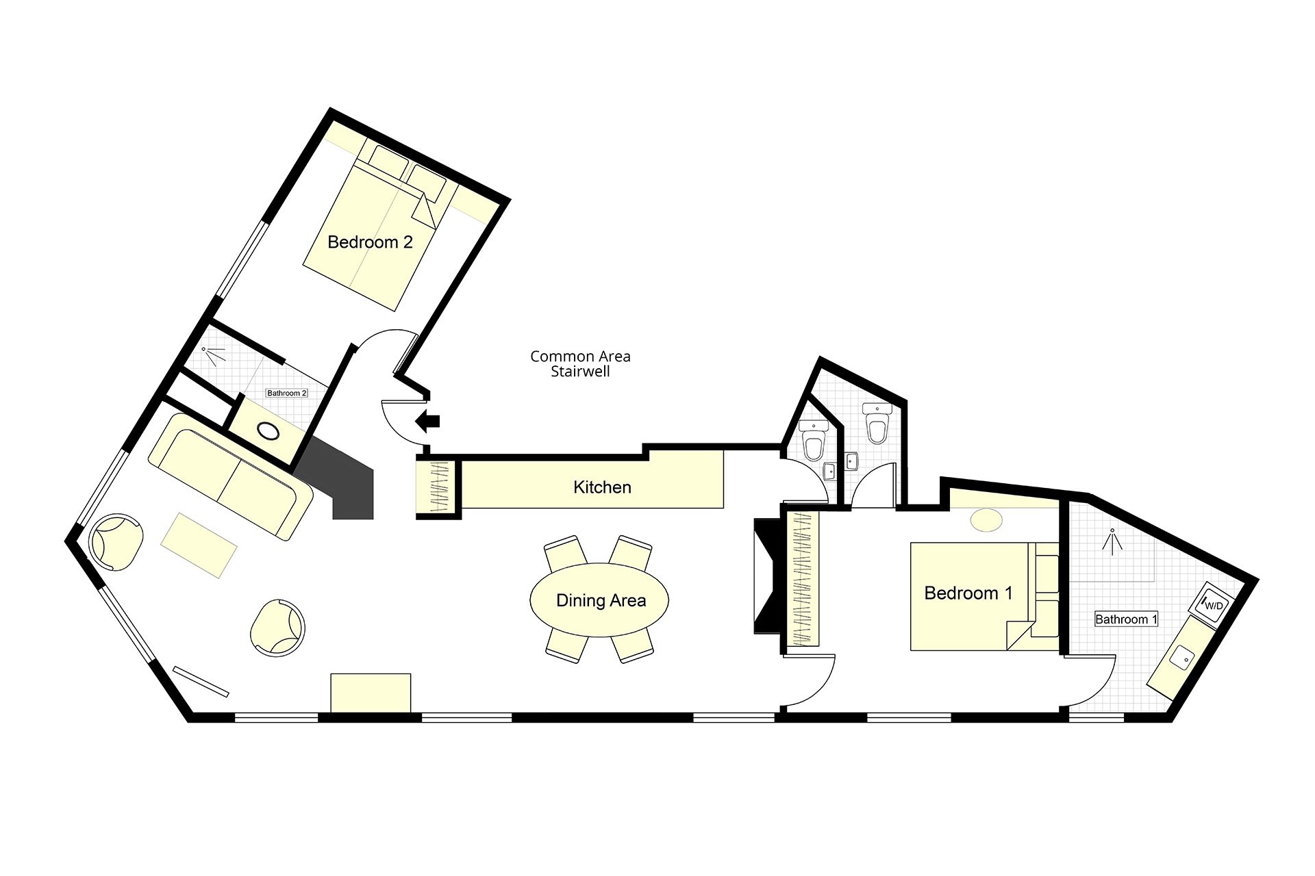
Sancerre has been completely renovated to bring you the best of modern living while maintaining elements that add to the period charm. Step inside the spacious open plan living room with dining room and kitchen to find a sweeping view across five sets of large French windows. This is where the magic happens. Like all our Paris Perfect Shared apartments, Sancerre was imagined and fully decorated by Ann Huff from Huff Harrington. Sancerre has a harmonious design that flows naturally from one room to the next. The open floor plan allows for modern living while the elegant decor makes your dream of living in Paris come true.

Enjoy spectacular Eiffel Tower views from the living room and bedroom 2 at Sancerre.
The sleek modern kitchen has everything you need right at hand for cooking at home and the marble-topped modern table will become your favorite spot to dine – especially with such charming Parisian views from your very own windows! With the charming rue Cler market street and cute food shops along rue Saint-Dominique, you’ll be truly tempted to cook at home. That is, if you’re not busy dining out at all the excellent restaurants in the neighborhood!

The luxurious bedrooms at Sancerre are full of light from large French windows where you can enjoy the same classic Parisian views. Each room is beautifully decorated with distinctive wallpaper and antique touches. The serene master bedroom has a spacious ensuite bathroom complete with washer and dryer. In the lovely second bedroom you’ll find a surprise – a view of the Eiffel Tower from bed! There’s also conveniently an ensuite shower room with a second half bathroom located near the kitchen.

Every element of the Sancerre is designed to create a warm and inviting home. We are passionate about crafting the perfect setting for simply enjoying the Parisian lifestyle. Wake up and start the day with a glimpse of the Eiffel Tower, enjoy shopping locally, strolling to museums or through the Champ de Mars. But above all, savor living in Paris surrounded by style and comfort.

Admire the Eiffel Tower day and night at Sancerre!
Take a closer look at Sancerre and find out more about its beautiful décor on this tour with Paris Perfect founder, Madelyn Byrne, and designer Ann Huff. Join us in welcoming Sancerre to the Paris Perfect Shared family!

Beautiful kitchen at the Sancerre has everything you need to enjoy cooking at home.

Gorgeous light-filled dining area with marble topped table.

The Hermès scarf that inspired Sancerre's decor - our signature Paris Perfect Shared touch!
2 BEDROOMS SLEEPS UP TO 6
Bedroom 1: Extra-wide queen bed (63in x 75in; 160cm x 200cm), Desk Area
Bedroom 2: Extra-wide queen bed (63in x 75in; 160cm x 200cm) that can be unzipped to form two single beds (31in x 75in; 80cm x 200cm)
Living room: High-quality sofa with trundle converts into two comfortable single beds (31in x 75in; 80cm x 190cm)

Serenely decorated bedroom 1 features a full bathroom and views over the tree-lined Parisian boulevard.

A desk space in bedroom 1 is ideal for working from home.

Stylish bedroom 2 has charming wallpaper and a welcoming atmosphere.

Relax and enjoy a stunning view of the Eiffel Tower from bedroom 2.
2 BATHROOMS
Bathroom 1 (Ensuite to bedroom 1): Large shower with fixed rainwater showerhead plus flexible showerhead, sink and washer dryer
Bathroom 2: Shower (fixed showerhead plus flexible showerhead), sink
2 Half Baths: Toilet and sink

The ensuite bathroom in bedroom 1 has a large French window to let in gorgeous light.

The spacious ensuite bathroom has a shower and washer and dryer.

A separate half bathroom with toilet and sink is conveniently located in bedroom 1.

The beautiful ensuite bathroom for bedroom 2 has striking tile and marble.

A second half bathroom is located off the open-plan kitchen and dining area.
KEY FEATURES
- Located on the 5th floor (North American, 4th floor French)
- Elevator
- Central A/C
- Two bedrooms plus sofa bed in the living room for additional sleeping
- Two bathrooms plus two separate half baths with toilet and sink
- Kitchen with full refrigerator, separate freezer compartment, electric oven, induction stove, microwave, dishwasher
- TV in the living room
- Shared owner storage room to leave your personal essentials
- Work space in Bedroom 1

The artwork has been carefully selected - each piece with a story!
KEY ATTRACTIONS ON YOUR DOORSTEP
- A dream located in the 7th arrondissement very near the Champ de Mars and Eiffel Tower. Enjoy strolling through the gardens or walking to the Seine nearby.
- Enjoy a fabulous view along the elegant tree-lined avenue de la Bourdonnais, one of the prettiest in the 7th arrondissement. Nearby you’ll find charming, one-of-a-kind boutiques along with top quality shops selling French specialties. It’s a dream for foodies!
- Walk over to rue Cler where you can shop for fresh ingredients or enjoy people watching at a café terrasse - the classic Parisian pastime.
- Enjoy discovering all the excellent restaurants in the neighborhood. Owners love sharing their favorites!
- This centrally located neighborhood makes means you can stroll to museums and sights on the Left and Right banks or hop on a bus or the Metro to easily get around Paris.

FRACTIONAL/SHARED OWNERSHIP:
Our Fractional Co-Ownership Program began in 2018 when we sold our first one-bedroom fractional apartment very quickly – within a month! Since then our waiting list of interested buyers has continued to grow. We are proud of the success of our concept and how it has allowed so many buyers to enjoy the beauty of living in Paris without any of the hassles. If you’ve always dreamed of living in Paris but aren’t able to live there year-round, our co-ownership program is perfect for you!
Sancerre is divided into 13 ownership shares, which includes four weeks each year for every buyer. This is NOT a timeshare property nor vacation club. You physically own part of the apartment, meaning you participate in the real estate value of the apartment. Your shares are fully deeded and can be sold or passed on to loved ones.

HASSLE-FREE OWNERSHIP IN THE MOST BEAUTIFUL CITY IN THE WORLD
The idea of fractional or shared ownership was launched in the United States with substantial success. Thanks to the Internet, many owners can live and work in their favorite places for part of each year. They increasingly want to spend time in a favorite location, such as Paris, and in their own home – without the hassles and expense of full ownership of a second or third home.

It was a natural fit for Paris Perfect, a company that has been remodeling and managing apartments in Europe for decades. We are uniquely able to offer a second home in Paris, carefully managed and maintained at a reasonable cost. In fact, we’ve done the cost comparable research. Just take a look at our price comparison presentation to see for yourself.

Please let us know if you would like to know more about becoming a shared owner. We would be pleased to schedule a call to discuss further!
- Eiffel Tower
- Marche Grenelle
- Rue du Commerce
- Ecole militaire de Paris
- Rue Cler
- Musée Branly Ethnic Arts
- Trocadero and Museum of Cinema
- Sewer Tour of Paris
- Alma Open Market
- Musée de la Mode
- Arc de Triomphe
- The Avenue of the Grand Couturiers
- Ave Montaigne: Four Seasons and Plaza Athénée
- Invalides
- Ave de Saxe Open Air Market Street
- Excellent neighborhood food shops and boutiques
- Rodin Museum
- rue de Grenelle: shops and restaurants
- rue St. Dominique: real Parisian Neighborhood
- Musée d'Orsay Impressionists
- Antiques and shopping rue du Bac
- Fashion boutiques on rue du Bac
- Bon Marche and Grande Epicerie Food Store
- Shops and fashion boutiques
- Left Bank Shopping on rue de Rennes
- Luxembourg Gardens
- St. Sulpice
- Shopping and cafe's Blvd St. Germain
- Restaurants and shopping
- Restaurants and brasseries; you're spoiled for choice
- Tuilleries
- Musée Du Louvre
- rue de Rivoli
- Sainte Chappelle
- Cluny Museum
- Notre Dame Cathedral
- BHV Department store
- Pompidou Museum
- Carnavalet Museum
- Berthillon Ice Cream
In the Neighborhood
- Seine River (12 min): Stroll along the romantic Seine river at sunset
- Eiffel Tower (10 min)
- Champ de Mars Park (1 min): Walk, jog, play in one of the playgrounds, throw some hoops, go to the puppet theater or just sit and enjoy the beautiful gardens.
- Paris Sewer Tour (12 min): Fascinating tour of limestone arches and caverns with street signs that traverse all of Paris . The Phantom of the Opera was inspired by these underground streets.
- Boat Tours (14 min): Bateaux-Mouches, Batobus and Bateaux Parisiens boat tours.
- Musée Branly (10 min): Award-winning Museum of Ethnic Arts.
- Ecole Militaire (6 min): Napoléon attended military school here and the buildings still show signs of gunfire from the French Revolution in 1789.
- Bike & Segway Tours (12 min)
- Open Markets: Pont de l'Alma market is a 14 minute walk and has the largest open market in Paris every Saturday morning. Rue Cler is five minutes away and is among the best and most famous shopping streets for food in Paris.
- High Fashion (14 min): Walk to the Grand Couturiers on avenue Montaigne - from Chanel, Dior, Givenchy, Valentino, to the outrageous Jean-Paul Gaultier and many more.
- Four Seasons Hotel, Plaza Athénée (20 min): Enjoy tea or 3 star dining. Plaza Athénée is famous for being the venue where the final episode of 'Sex and the City' was filmed.
- Trocadero (28 min)
- Invalides (13 min): Napoléon's tomb rests under its golden dome.
- Grand Palais (20 min): Venue for world-famous art exhibitions.
- Rodin Museum (18 min)
- Champs-Élysées (21 min): Walk to the Champs-Élysées, Arc de Triomphe and Louis Vuitton flagship store.
- Musée de l'Armée (14 min): One of the world's finest collections of arms, medieval armor and uniforms
- Rue du Commerce (18 min): A true Parisian shopping street with trendy boutiques, food stores, bistros and the Monoprix department store, like a French Target - good quality and great prices!
- Musée d'Orsay (26 min)
- Place de la Concorde, Madeleine, American Embassy (27 min): Walk along the beautiful river or take a nearby train.
- Bon Marché, rue du Bac (24 min): Famous shopping area.
- Louvre Museum (38 min): Walk along the beautiful river or go direct by bus.
- Department Stores: Direct metro and bus to Galeries Lafayette and Printemps Department Stores.
Apartment Information
| Sleeps: | 6 |
| Bedroom(s): | 2 |
| Bathroom(s): | 2 |
FEATURES
- Located on the 5th floor (North American, 4th floor French)
- Elevator
- Central A/C
- Two bedrooms plus sofa bed in the living room for additional sleeping
- Two bathrooms plus two separate half baths with toilet and sink
- Kitchen with full refrigerator, separate freezer compartment, electric oven, induction stove, microwave, dishwasher
- TV in the living room
- Shared owner storage room to leave your personal essentials
- Work space in Bedroom 1


























